欢迎来到塑胶跑道厂家|塑胶跑道材料|硅PU球场材料|人造草坪|新生体育场地材料有限公司
#
17621534515
您当前所在位置: 首页运动草
人造草坪门球场
日期:2020-05-29      来源:隆旗体育     浏览:2998 次

公司简介

江苏隆旗体育场地材料有限公司专业生产塑胶跑道材料、塑胶地坪材料、硅PU球场材料、丙烯酸球场材料、体育场围网、人造草坪等各类运动场地用原材料,集设计、生产、销售、施工于一体,主要业务包括塑胶跑道、塑胶地坪、篮球场、网球场、羽毛球场、人造草坪足球场等各类运动场地的铺装。公司拥有专业生产聚氨酯地坪铺装材料设备,优质的原材料,先进的生产工艺,完善的实验检验设备和经验丰富的专业施工队伍,公司已形成年产聚氨酯产品3000吨,年产各种地坪材料10万平方米,年铺设各类运动场地10万平方米,产品质量经国家体育产品权威检测机构华东理工大学、上海建科、CTI华测检测等第三方检测机构检测,性能符合GB/T14833-2011国家标准、GB36246-2018国家标准。


人造草坪门球场简介

产品名称:人造草坪门球场——加密高仿人造草皮运动门球场施工厂家材料直销。

青出于草,尤胜于草,这就是人造草坪。人造草坪主要由草丝、底布、背胶构成,草丝常用材质主要为PE、PP、尼龙等,这和我们平时用的饮料瓶等塑料材质类似,所以无需担心安全环保问题。

人造草坪主要用于运动领域,常用于门球场、足球场、休闲场地、景观草坪等。

隆旗体育生产的人造草坪采用质量优异的塑料纤维作为草丝原材料,耐老化、颜色长久不褪色、长期使用不粉化,更可选用进口赛尔隆草丝。采用环保乳胶或者PU胶作为背胶,底布更牢固,草丝不易脱落,同时也更环保。可选用双层底布或者三层底布,底布柔韧性更好。

7.jpg

人造草坪是一种由聚丙烯(PP)或聚乙烯(PE)以及由聚丙烯和聚乙烯混合成的纤维为原料,同时添加了适量的紫外线吸收剂和燃料尼龙、聚丙烯,经织成后,覆到树脂底基上制成。类似地毯,铺在坚硬的场地基础上,内填石英砂和胶粒而组成的人造草坪。

人造草坪需要提前根据客户的实际场地尺寸定制生产,一般交货时间10天左右,现场铺装时间约5天左右(根据面积大小铺装时间不等)。


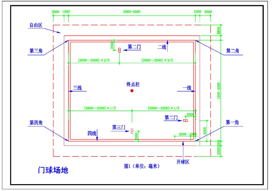
门球场的尺寸和占地面积

门球场标准尺寸,一块标准的门球场地尺寸,比赛区是20米×15米,关于限制区,2006年中国门球协会修订了最新的比赛规则,其中对门球场的场地尺寸中的限制区也做了修订,老规则中,限制线在比赛线外1米处,与比赛线平行,修订后新的规则要求限制线在比赛线外50厘米至1米处,与比赛线平行。

3.jpg


人造草坪门球场优点

1、人造草坪门球场维护简单,养护费用低,用清水冲洗即可去除污垢,而且具有不褪色,不变形的特点。

2、人造草场坪门球场地使用率高,即减震,又无噪音,安全无毒,富有弹性,阻燃性能好等特点。

3、人造草坪门球场透气透水,铺设于硬土或混凝土的基础上,基础质量要求不高,不怕开裂,无起泡脱层之忧,既简单又经济。

4、人造草坪门球场内填充高密度曲丝草坪,也填充石英砂,起到保护草的作用,使草丝更为耐用。

5、人造草坪门球场整体布局美观,使用率高寿命可达5年以上,且耐用易保养,可全天候持续使用。

6、人造草坪门球场材质环保,成品施工,工期固定,品质易察。

2.jpg


人造草坪门球场施工方案

1、基础处理

施工前,甲方应当处理好基础的维修工作,此时基础应当整体平整,没有坑洼现象,排水情况良好。施工方应将场地上无关的东西清理出场地,如果有坑洼凸起的地方,应当维修好之后再进行施工。 

2、绘制底线

根据施工图纸,施工方在场地上绘制好底线,并需甲方确认才可进行下一步。 

3、草卷的展开及拼接

将草卷(一般为4米一卷)一一展开,均匀的摊铺到场地上,使用接缝布,在草坪的边缘部分涂刷胶水,将草卷依次粘接到一起。留出中间的部分暂时不粘接。 

4、切割功能线(白线)

根据预先绘制好的底线,将功能线割出来。 

5、粘接功能线(白线)

将白线的底布刷上胶水,再将切割好的功能线区域放好接缝布,将草卷两侧刷好胶水,将接缝布刷上胶水,待胶水干后,将白线贴到切割好的位置上。

全部贴好后,再整体将接缝处压实,防止后期开胶。 

6、充砂(可选方案)

将石英砂依次填充到草坪上,全部填充完毕后,将场地整体刷平整。

此过程约需要6个小时。全部完成后,由甲方确认好平整度后,球场全部施工完成。

1.jpg


人造草坪案例

人造草坪.jpg


人造草坪门球场的维护保养

1.保持场地干净。

2.在草地周围竖立“禁止吸烟”标识的机动车辆及重物不要进入运动场地。

3.减少清扫次数,避免高温时清扫。

4.设置足够的垃圾箱。

5.控制对场地的使用。

6.小的损坏应及时修补。

4.jpg


检测报告

检测报告汇总小尺寸.jpg


我们的合作单位

    江苏省常州市河海中学

    江苏省常州市新北区大风车幼儿园

    上海市浦东新区周浦镇丽景湾PLUS

    苏州方正科技发展有限公司

    浙江省杭州市临安区青山湖越秀星汇城

    武汉市洪山区毛坦港湾小区

    浙江省绍兴市新昌县回山小学&小将中学

    浙江省台州市温岭大溪镇照洋小学

    浙江省衢州市江山中专少体校

    安徽省阜阳市颍州区众信新安府小区售楼处

    浙江省温州市泰顺县阳光家园小区

    江苏省昆山市淀山湖韵湖国际小区

    山西省太原市奇和锐足球场

    山西省朔州市军分区部队

    上海市浦东新区滨江世贸花园小区足球场

    上海市松江区茸城运动中心

    江苏省苏州市常熟市常体健身

    浙江省杭州市临安区跨境电子商务大楼

    上海市浦东新区小白路足球场

    河南省郑州市索易儿童成长中心

    浙江省宁波市宁海县洋溪大桥(隶属交通局)

    宁波市慈溪市观海卫卫前实验学校

    浙江园博景观建设有限公司

    上海市宝山区杨泰实验学校

    上海浦东新区关兴教育培训中心

    上海市宝山区保利熙悅小区

    上海嘉定区华东送变电工程有限公司

    扬州市高邮市国家电网


服务支持

本公司所施工的塑胶场地完工后,交付甲方之日起免费保修二年,终身维护,保修期满后,收取成本费。

江苏隆旗体育是一家专业从事体育场地施工的企业,主营塑胶跑道、塑胶地坪、塑胶篮球场、塑胶网球场、幼儿园塑胶地坪、人造草坪足球场、硅PU篮球场、硅PU网球场、丙烯酸篮球场、丙烯酸网球场、体育场围网等专业体育场地施工,提供一站式一条路服务,整体解决方案。


联系我们

公司地址:江苏常州新北区浩源大厦1008室

热线电话:400-0936580

公司电话:0519-83466604

公司网址:www.longqisport.com

公司邮箱:service@longqisport.com


上一篇: 人造草坪运动跑道
下一篇:已经是最后一篇了